Заинтересовало предложение? Закажите обратный звонок
Общепит в центре 384 м2, вытяжка и 90 кВт№ 19434
450 000 руб / мес
Адрес:
Гагаринская 6
Район:
Центральный
Тип сделки:
Аренда
Тип здания:
Жилой дом
Готовность:
Пустое помещение
Входная группа:
Первая линия

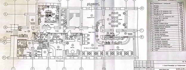
Общая площадь: 384,0 м2
Мощность: 89 кВт
Этаж: Цоколь
Высота потолков: 3,0 м

Вытяжка
Сверху нежилое помещение
Место под террасу
Сдается в аренду помещение на ул. Гагаринской, цокольный этаж! Под бар/рюмочную или другую деятельность (можно не общепит)

✔️ Площадь 384 м2
✔️ Электрическая мощность 90 кВт
✔️ Установлена свеча и приточно-вытяжная вентиляции для общепита.

Высокая проходимость, рядом Нева и летний сад. От метро Чернышевская- 10 минут пешком.

Не КГИОП!
Получить лицензию на алкоголь и решить все возможные трудности
Установить систему автоматизации по специальной цене
Закупить оборудование у наших партнеров на особенных условиях
450 000 руб / мес
Адрес:
Гагаринская 6
Район:
Центральный
Тип сделки:
Аренда
Тип здания:
Жилой дом
Готовность:
Пустое помещение
Входная группа:
Первая линия

Общая площадь: 384,0 м2
Мощность: 89 кВт
Этаж: Цоколь
Высота потолков: 3,0 м

Вытяжка
Сверху нежилое помещение
Место под террасу
Получить лицензию на алкоголь и решить все возможные трудности
Установить систему автоматизации по специальной цене
Закупить оборудование у наших партнеров на особенных условиях